BÁO GIÁ THI CÔNG, LẮP ĐẶT CỬA KÍNH THỦY LỰC BẢN LỀ SÀN CẦU GIẤY HÀ NỘI
16/11/2016 | Đăng bởi Đỗ Hồng Quảng
BÁO GIÁ CỬA KÍNH THỦY LỰC BẢN LỀ SÀN 2017 GIÁ RẺ
|
STT |
Tên hàng |
Đơn vị |
Số Lượng |
Đơn giá (VNĐ) |
|
A |
KÍNH CƯỜNG LỰC |
|||
|
3 |
Kính cường lực 10mm |
m2 |
Theo thực tế |
600.000 |
|
4 |
Kính cường lực 12mm |
m2 |
Theo thực tế |
800.000 |
|
5 |
Kính cường lực 15mm |
m2 |
Theo thực tế |
1.350.000 |
|
B |
PHỤ KIỆN CỬA THỦY LỰC MỞ QUAY BẢN LỀ ÂM SÀN – THÁI LAN |
|||
|
1 |
Bản lề âm sàn VVP |
Chiếc |
01 |
1.100.000 |
|
2 |
Kẹp trên |
Chiếc |
01 |
250.000 |
|
3 |
Kẹp dưới |
Chiếc |
01 |
250.000 |
|
4 |
Kẹp L |
Chiếc |
01 |
350.000 |
|
5 |
Khóa sàn |
Chiếc |
01 |
350.000 |
|
6 |
Tay nắm inox |
Vòng |
01 |
400.000 |
|
B |
CỘNG TIỀN HÀNG |
BỘ 1 CÁNH |
2.700.000 |
|
|
BỘ 2 CÁNH |
5.400.000 |
|||
|
C |
PHỤ KIỆN CỬA THỦY LỰC MỞ QUAY BẢN LỀ DƯƠNG SÀN – ĐỨC |
|||
| 1 | Bản lề âm sàn VVP | Chiếc | 01 | 1.850.000 |
| 3 | Kẹp trên | Chiếc | 01 | 250.000 |
| 4 | Kẹp dưới | Chiếc | 01 | 250.000 |
| 5 | Kẹp L | Chiếc | 01 | 350.000 |
| 6 | Khóa sàn | Chiếc | 01 | 350.000 |
| 7 | Tay nắm inox | Vòng | 01 | 400.000 |
|
C |
CỘNG TIỀN HÀNG |
BỘ 1 CÁNH |
3.450.000 |
|
|
BỘ 2 CÁNH |
6.900.000 |
|||
Ghi chú:
1. Giá trên chưa bao gồm thuế VAT 10%
2. Giá trên đã bao gồm vận chuyển và lắp đặt tại nội thành Hà Nội
3. Tất cả sản phẩm bảo hành 12 tháng
4. Cám ơn Quý khách đã ghé thăm trang Web: cuanhomhungtin.com của công ty chúng tôi!
Mời quý khách qua thăm quan showroom chúng tôi tại Số 19 Ngõ 180 Hoàng Quốc Việt Cầu Giấy Hà Nội
Mọi chi tiết xin liên hệ Mr Quảng: 0986.557.982 - 0915.905.011
Email: Cuahungtin@gmail.com
Hình ảnh minh họa cửa kính thủy lực
Cửa kính thủy lực cánh mở quay, phụ kiện Đức không khoét sàn

Cửa kính thủy lực 2 cánh mở quay dùng kẹp trụ

Cửa thủy lực 2 cánh mở quay (cửa 5 tấm)

Cửa kính 2 cánh mở quay (cửa 4 tấm)

Cửa kính thủy lực 2 cánh mở quay (cửa 4 tấm)

Cửa kính 2 cánh mở quay + vách kính
1. Cửa kính thủy lực
– Cửa kính thủy lực bản chất của tên gọi cửa này là do bản lề cửa có cấu tạo, thiết kế, và bố trí khác so với các bản lề cửa gỗ, cửa inox truyền thống. Bản lề cửa kính thuỷ lực nằm ngầm dưới sàn, sát mép tường, phía trên có tấm kim loại che phủ.
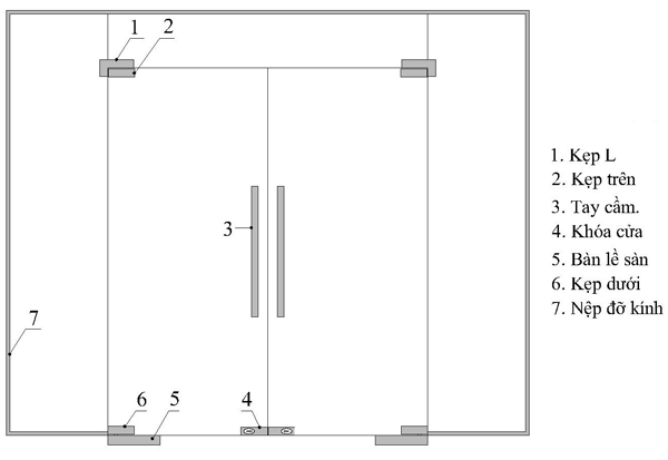
– Cửa kính thủy lực được làm từ kính cường lực kết hợp với bộ phụ kiện như:
.Tay nắm cửa kính
.Bản lề sàn
.Kẹp L, Kẹp dưới, Kẹp trên, Kẹp giữa.
.Khóa sàn
.Nhôm xập
.Keo dán silicoll

Cấu tạo cửa kính thủy lực
2. Ưu điểm của cửa kính thủy lực
– Cách âm, cách nhiệt tốt, chống ồn và khói bụi ô nhiễm.
– Giúp lấy ánh sáng tự nhiên, kính sẽ tạo cho chúng ta cảm giác mát và dễ chịu.
– Cửa kính không cong vênh, biến dạng.
– Mang lại sự chắc chắn và an toàn khi sử dụng
– Tiện lợi cho việc đóng mở khi có hệ thống thuỷ lực.
– Dễ lau chùi vệ sinh.
– Bền đẹp với thời gian.
– Không gian trẻ trung năng động, phù hợp ngay cả với diện tích nhỏ.
4. Ứng dụng của cửa kính thủy lực
– Làm cửa kính mặt tiền, cửa nhà phố, cửa đi chính cho các hộ gia đình.
– Làm kính cho cửa hàng, cửa hiệu, kiot bán hàng.
– Làm cửa kính tiền sảnh cho các tòa nhà cao tầng, trung tâm thương mại, văn phòng cho thuê
– Làm cửa kính cho các công trình công cộng.
– Làm nhà kính, cửa kính cho các cơ quan, tòa cao ốc, khách sạn, nhà hàng,…
5. Quy trình tư vấn báo giá làm cửa kính thủy lực
– Tiếp nhận thông tin khách
– Tư vấn, khảo sát tại công trình
– Báo giá, lên phương án thi công
– Gia công, sản xuất tại xưởng
– Thi công, lắp đặt tại công trình
– Nghiệm thu, bàn giao, thanh toán
Hãy gọi trực tiếp cho chúng tôi: 0986.557.982 - 0915.905.011 để được tư vấn và báo giá tốt nhất
Viết bình luận